û´ã¿ª Àα٠¼ºÅ« ±¤°í»çÁø ½ºÆ©µð¿À ¾çµµÇÕ´Ï´Ù | 2024³â 04¿ù 04ÀÏ 14:12
http://blog.photovill.com//99662
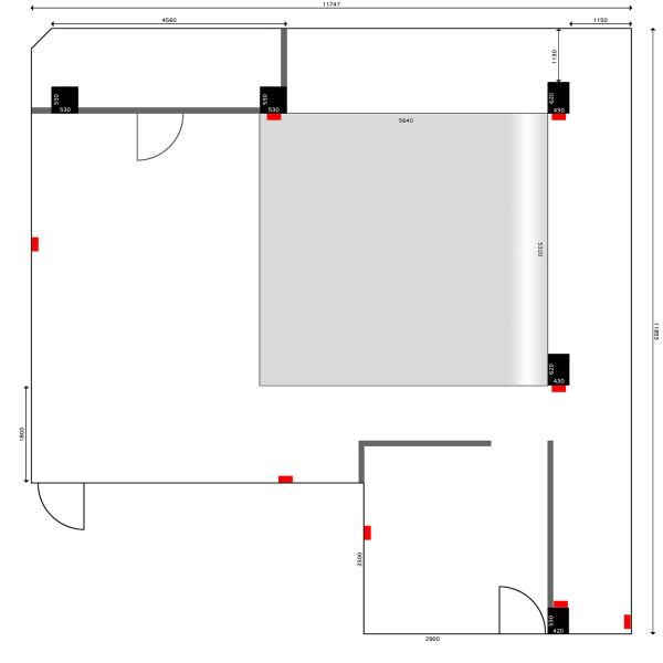
7È£¼± û´ã¿ª¿¡¼­ µµº¸ 2ºÐ°Å¸®ÀÇ ¼ºÅ« ÀÖ´Â ½ºÆ©µð¿À ¾çµµÇÕ´Ï´Ù

45Æò Á¤µµ Å©±âÀ̰í õÀå ³ôÀÌ´Â ³ôÀº °÷ÀÌ 4.7m, ³·Àº °÷ÀÌ 3.8m ÀÔ´Ï´Ù
ÇöÀç È£¸®Áð, »ç¹«°ø°£ 2, â°í°ø°£ 2·Î ³ª´µ¾î ÀÖ°í ³»ºÎ¿¡ ³²³à ±¸ºÐ È­Àå½Ç ÀÖÀ¸¸ç ¿ÜºÎ¿¡ ¼ºÅ«ÀÌ ÀÖ¾î ºûÀÌ Àß µé¾î¿É´Ï´Ù.
Â÷·® 2´ë Àü¿ë ÁÖÂ÷ °ø°£ÀÌ µû·Î ÀÖ°í ÀÓ´ëÀβ²¼­µµ À̶§ ±îÁö ´Ü Çѹøµµ ¿¬¶ôÀÌ ¾øÀ¸½Ç ¸¸Å­ ÆíÈ÷ °è½Ç ¼ö ÀÖ½À´Ï´Ù

º¸Áõ±Ý 6,000 ¿ù¼¼ 420 °ü¸®ºñ´Â ¾ø½À´Ï´Ù

½Ã¼³ºñ´Â 500 »ý°¢Çϰí ÀÖ½À´Ï´Ù

010-»ïÄ¥»ç»ç-À°ÆÈ¿ÀÀÌ ·Î ¿¬¶ô ÁÖ½Ã±æ ¹Ù¶ø´Ï´Ù 


interior_1.jpg


도면.jpg
ÄÚ¸àÆ® | °ü·Ã±Û ½ºÅ©·¦(0) | ¼öÁ¤ | »èÁ¦
½´ÆÛ»ì·Õ809 T½ºÅÙµå | 2024³â 04¿ù 04ÀÏ 11:06
http://blog.photovill.com//99661
»çÁøÀÌ ¿Ã¶ó°¡Áö ¾Ê³×¿ä.
¹ÙÄû°¡ °íÀ峪¼­ ±³Ã¼ ¿¹Á¤ÀÔ´Ï´Ù.
ÄÚ¸àÆ® | °ü·Ã±Û ½ºÅ©·¦(0) | ¼öÁ¤ | »èÁ¦
[°¡°ÝÀÎÇÏ] ºê·ÐÄ÷¯ ÅäÆÄÁî A4 3200w, ÆÞ¼Ò 3200 | 2024³â 04¿ù 02ÀÏ 21:30
http://blog.photovill.com//99660

ºê·ÐÄ÷¯ ÆÄ³ë¶ó¸¶ ¸®»çÀÌÁî 9.jpg

ºê·ÐÄ÷¯ ÅäÆÄÁî A4 3200w, ÆÞ¼Ò 3200, ¸®Ç÷ºÅÍ µî ÆÇ¸ÅÇÕ´Ï´Ù

»óÅ´ ¸ðµÎ »ç¿ë·®ÀÌ ¸¹Áö ¾Ê¾Æ »çÁø ó·³ ¸Å¿ì ÁÁÀº ÄÁµð¼ÇÀÔ´Ï´Ù

Topas A4 3200w 1°³ (Àü¿ø ÄÉÀ̺í, ÆÄ¿öÆÑ ÆÄ¿ìÄ¡ Æ÷ÇÔ)
Pulso G 3200 1°³
Reflector P70¡¯ 9¡± 1°³ (ÂïÈû ÇÑ °³ ÀÖÀ½)
Umbrella Reflector 1°³
Lamp extension cable 2.5m 1°³
Barn door 2 wings 1°³ (»çÁø¿¡´Â ¾øÁö¸¸ Æ÷ÇÔÀÔ´Ï´Ù)

ÆÇ¸Å±Ý¾× 430¸¸¿ø => 400¸¸¿ø ÀÔ´Ï´Ù

¼÷´ëÀÔ±¸¿ª ÁÖº¯¿¡¼­ Á÷°Å·¡ ¿øÇÕ´Ï´Ù
¿¬¶ôó´Â 010-5212-12ÆÈ±¸ ÀÔ´Ï´Ù.
ÄÚ¸àÆ® | °ü·Ã±Û ½ºÅ©·¦(0) | ¼öÁ¤ | »èÁ¦
óÀ½À¸·Î  ÀÌÀüÆäÀÌÁö   ... [131] [132] [133] 134 [135] [136] [137] [138] [139] [140] ...  ´ÙÀ½ÆäÀÌÁö  ¸¶Áö¸·ÆäÀÌÁö